REQUEST A TOUR If you would like to see this home without being there in person, select the "Virtual Tour" option and your agent will contact you to discuss available opportunities.
In-PersonVirtual Tour

$ 545,000
Est. payment | /mo
1 Bed
1 Bath
$ 545,000
Est. payment | /mo
1 Bed
1 Bath
Key Details
Property Type Apartment
Sub Type Condo Apartment
Listing Status Active
Purchase Type For Sale
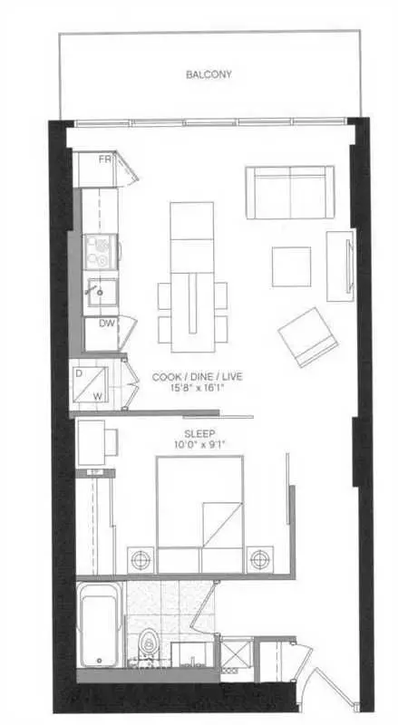
Approx. Sqft 500-599
Municipality Toronto C01
Subdivision Bay Street Corridor
MLS Listing ID C12673630
Style Apartment
Bedrooms 1
HOA Fees $493
Annual Tax Amount $3,250
Tax Year 2025
Property Sub-Type Condo Apartment
Property Description
Luxury, Spacious 1 Bedroom Plus Huge Private Balcony In Modern/Chic & Historically-Designated Facades Building. Open Concept Floor Layout W 4 PC Bath. Bright Sunny Unit W Unobstructed Clear South City, Lake View. Floor To Ceiling Windows And 9" Ceiling. Modern Finish Kitchen, Ample Cabinetry W High Quality Miele Built-In Appliances. Large Center Island Comfortably Seats Four *Perfect For Entertaining* W Smooth Corian Top. This Condominium Is A True Gem W/ A Contemporary Lobby* Easy Pickup & Drop Off Zone For Deliveries* Hotel Like Amenities W/ 24Hr Concierge, Party / Entertainment Room, Library, Spa Room, Steam Rooms, Games Room, Hot Tub & BBQ W/ Large Rooftop Garden. Ample Visitor Parking. Steps To Subway Station, U Of T, MTU, Eaton Centre, Shopping, Restaurants And All!
Location
Province ON
County Toronto
Community Toronto C01
Area Toronto
Rooms
Family Room No
Basement None
Kitchen 1
Interior
Interior Features Carpet Free
Heating Yes
Cooling Central Air
Fireplace No
Heat Source Gas
Exterior
Parking Features Underground
Exposure South
Balcony Open
Building
Building Age 6-10
Story 35
Unit Features Clear View,Hospital,Library,Park,Public Transit,School
Locker None
New Construction true
Others
Pets Allowed Yes-with Restrictions
ParcelsYN No
Listed by HOMECOMFORT REALTY INC.
GET MORE INFORMATION

Popular Searches






